Hundeurlaub-eingezäunte Südterrasse, Parterre, eingezäunte Hundewiese Typ 3
Piratennest Born - Wassergrundstück Typ 3 in Born a. Darß
Last-Minute Angebot: 5 % Rabatt im Zeitraum 28.03.2026 - 07.04.2026
Ihre Ferienunterkunft "Kurz & Knapp"
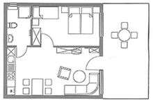
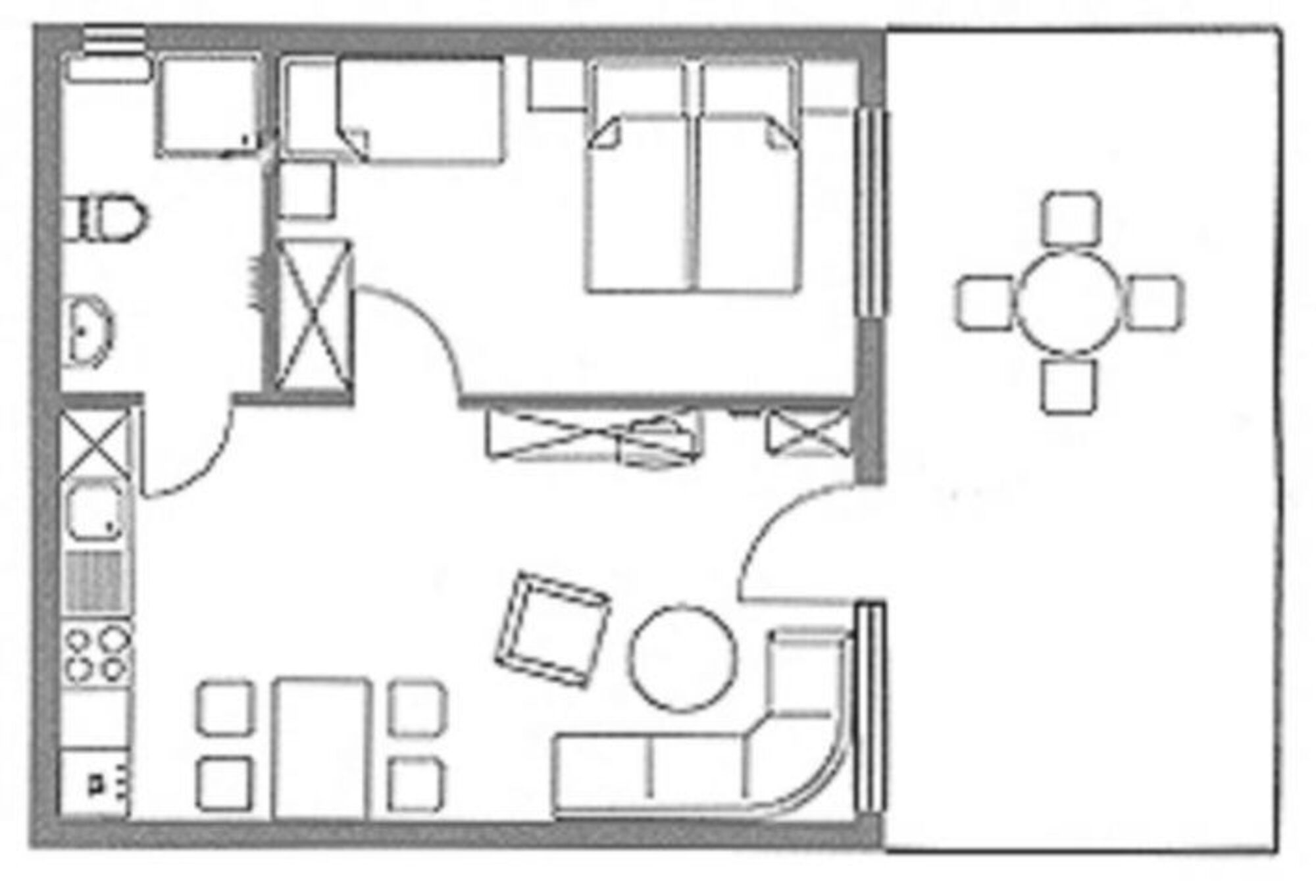
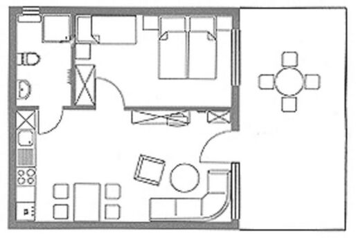
Wohnfläche
Schlafzimmer
Personen (max.)
Hunde (max.)
Vermieter seit
Hunde (Tiere) in der Ferienunterkunft
| Anzahl der Hunde: | 2 Hund(e) |
| Ausstattung für Hunde: | Hundebademöglichkeit auf dem Grundstück Hundebademöglichkeit in der Nähe Hundespaziergang vom Haus aus möglich Tierarzt in der Nähe (bis 20km) Umfriedeter Gartenbereich (komplett mit Zaun / nicht nur Hecke) Umfriedetes Grundstück (komplett mit Zaun) Zaunhöhe bis 1,50 Meter |
Weitere Informationen zu Tieren in der Unterkunft und Besonderheiten für den Hund in der Umgebung:
- Keine läufige Hündin - Hunde die Rassebedingt als gefährlich angesehen werden
Größe
| Art der Unterkunft: | Ferienwohnung |
| Grundstück: | 6000 m² |
| Wohnfläche gesamt: | 43 m² |
| Baujahr: | 2025 |
Belegung
| Anzahl Schlafzimmer: | 1 |
| Anzahl Badezimmer/Gäste-WC: | 1 |
| Belegung max.: | 2 Person(en) |
Beschreibungen
Zwischen Ostsee und Bodden, Wald und weiten Wiesen, liegt das ehemalige Seefahrer- und Fischerdorf B o r n - auf der Boddenseite der Ostseehalbinsel Darss - direkt im Nationalpark "Vorpommersche Boddenlandschaft". zuneigen.
Es erwartet Sie eine separat und Hundefreundlich eingerichtete Ferienwohnung T y p 3 mit 43 m² Wohnfläche für 2 Personen auf dem Wassergrundstück (6000m²) direkt am Bodden mit allem Komfort in ruhiger aber zentraler Lage.
Zur Ferienwohnung gehört ein gemütliches Wohnzimmer mit integrierter Küche, Schlafzimmer mit Doppelbett, Bad mit Dusche, WC + Fön, ein separater Eingang (Parterre), eine eingezäunte Südterrasse mit Boddenblick, Grill...
Der gemütliche Wohnbereich ist ausgestattet mit vielen Bildern, einer Couchgarnitur, einem Fernseher, Radio usw..
Die integrierter Küche verfügt über einen Geschirrspüler, 4 Platten-Herd mit Backofen, Kühlschrank mit Gefrierfach, Mikrowelle, Kaffeemaschine, Toaster, Wasserkocher und Geschirr, Töpfe was Sie zum Kochen benötigen.
Sicherlich werden Sie so manche nette Stunde bei einer duftenden Tasse Kaffee oder Tee oder einem Glas Rotwein oder bei einem Kartenspiel an unserem Esstisch verbringen.
Bei geöffneter Terrassentür oder Fenster können Sie, wenn es weht, das Plätschern der Wellen und das Rauschen des Schilfes hören oder der Schrei der Möwen oder auch der Kraniche im Frühjahr oder Herbst..
Urlaub mit Hund oder anderem?
- Tierfreundliche Gastgeber
- Kinder ab 8 Jahre
- Langjährige Erfahrung mit Hundeurlaub
- Direkt am Bodden mit einem eigenen Zugang zum Wasser (33m)
- Bademöglichkeit für Hund und Herrchen, für Frauchen natürlich auch
- Bänke zum Verweilen
- Freilaufen können die Vierbeiner auf der großen eingezäunten Wiese
(zum Wasser hin offen) am Wasser
- Spazierwege ab Haus mit Auslaufmöglichkeiten für Hunde
- Fahrradverleih mit Anhänger für den Hund in ca. 100m,
- Ostseehundestrand in ca. 4 km durch den schönen Darsser Urwald per Fahrrad, zu Fuß
oder mit dem Auto (Parkplatz, Ostseedeich, Strand) oder über den Boddendeich, Wiesen..... Strand...)
- separatem Eingang (Parterre),
- Eingezäunte Südterrassen mit Boddenblick
********** * Tierarzt im Ort
Willkommen sind liebe Hunde, die sich auch mit anderen Gästehunden verstehen !!!
Lage & Entfernungen
50 Meter
Piratennest - Wassergrundstück - Urlaub mit Hund - Fam. Fitzka
300 Meter
Alte Bäckerei, Im Moor 7
100 Meter
Sparkasse Vorpommern - Filiale, Schulstrasse 2 A
1000 Meter
Aldi, Edika
200 Meter
Restaurant Rieming
50 Meter
Bodden, Koppelstrom, Schulstrasse 4
50 Meter
Wassergrundstück
500 Meter
Born
50 Meter
Bodden
1000 Meter
Shell
- Kleinkunstbühne "Sommertheater" - Theater, Konzerte, Veranstaltungen für
Kinderrn- Forst- und Jagd Museum
- Meeresmuseum Stralsund
- Ozeneum Stralsund
- Naturem Darsser Ort
- Darss - Museum in Prerow
- Museumshof Zingat
- Führungen durch die Vogelschutzgebiete, Darsser Wald usw.
- Freilichtmuseum Klockenhagen
- Bernsteinmuseum Ribnitz-Damgarten
- Ostseeschmuck Schaumanufaktur Ribnitz-Damgarten
- Fischlandhaus Wustrow
- Nationalpark Arche in Wieck
- Nationalpark-Infozentrum Sundische Wiese
- Arche in Wieck
- Pilzmuseum Neuheide
- Galeriebesuche: Born, Wieck, Künstlerort Ahrenshoop...
- Darsser Schmuggler in Born
- Konzerte in der reetgedeckten Fischerkirche in Born gibt es während der Saison so manches anspruchvolles Konzert.
Zu Weihnachten stimmt das Dorfensemble auf die Feiertage ein.
Typische Markenzeichen sind:
- sind die schilfgedeckten Häuser mit einem kräftigen Farbanstrich (blau, rot oder gelb) versehen
- Darsser Haustüren werden kunstvoll und individuell gefertigt
- rohrgedeckte Seemannskirchen
- ehemalige Seemanns- und Fischerdörfer
- urwüchsiger Weststrand
- Darsser Urwald
- Naturen
- kleine Häfen und Anlegestellen
- Nationalpark Vorpommersche Boddenlandschaft
- Vogelschutzgebiete
- Kranichzug im Herbst und Frühjahr
- Darsserort
Wohnen an Land - Spass auf dem Wasser
Erleben Sie die Schönheit und Faszination der Vorpommerschen Boddenlandschaft vom Wasser aus.
Entspannung und Ruhe geniessen.
Angeln: .
Auch attraktive Angelreviere wie die Ostsee und den Bodden werden die Sportfischer begeistern..
Direkt vor Ihrer Tür können Sie vom Bootssteg aus ANGELN.
Die Gewässer bieten hervorragende Angelmöglichkeiten auf Hecht, Zander, Barsch, die in beachtliche Grössen vorkommen. Auch kräftige Aale, Graskarpfen, Hornhecht, Flunder, Brasse werden gefangen.
In nur wenigen Fahrminuten ist die Ostsee für die Brandungsangler ein lohnendes Ziel.
Unzählige Kilometer Strand stehen zur Verfügung.
Sinnvoll ist das Brandungsangeln und das Angeln von Molen und Seebrücken in der Zeit von Oktober bis Mai. Wenn die Wassertemperatur abnimmt hat man gute Chancen, grosse Dorsche oder Meeresforellen zu angeln.
Das Hochseefischen ist von den Hansestädten Rostock oder Stralsund möglich.
- Bootfahren
- Fitness
- FKK
- Freibad
- Freizeitpark
- Hallenbad
- Hochseeangeln
- Kanufahrten
- Kitesurfing
- Kutschfahrten
- Minigolf
- Nordic-Walking
- Radfahren
- Schwimmen
- Segeln
- Shopping
- Ski-Langlauf
- Stadtbesichtigung / Sightseeing
- Surfen
- Tennis
- Tretbootfahren
- Wasserski
- Wellness
- Zoo
- Erholungsurlaub
- Familienurlaub
- Single-Urlaub
- Sport- und Aktivurlaub
- Strandurlaub
- Urlaub am Meer (max. 25km entfernt)
- Urlaub am See (See max. 10km entfernt)
- Urlaub mit Hund
- Wander- oder Kletterurlaub
Die Ostseehalbinsel Fischland-Darss-Zingst liegt im Norden von Mecklenburg-Vorpommern und ist eine 45 km lange Halbinsel zwischen den altehrwürdigen Hansestädten Rostock und Stralsund, welche über die Autobahnen A19 oder A 20 und anschliessend über die B 105 aus beiden Richtungen gut zu erreichen ist.
Mit dem Auto kommt man über die A19 aus Richtung Berlin und über die A20 aus Richtung Lübeck/Hamburg Richtung Darß.
Sie fahren am Autobahnabzweig Rostock-Ost ab und weiter über die B 105 bis zum Abzweig Altheide.
Von dort aus geht es links Richtung Fischland-Darß.
Über den Darß führt nur eine Straße, die Bäderstraße L21
Mit der Bahn
Mit der Bahn kommt man über Stralsund, Rostock oder Ribnitz-Damgarten dem Darß am nächsten.
Von Ribnitz Damgarten-West aus fährt jeweils der Bus 210 über die Ostseehalbinsel.
Mit dem Bus
Mit -MeinFernbus- gelangt man auf auf den Darß.
Weitere Informationen finden Sie im Internet.
Mit dem Flugzeug
Mit dem Flugzeug in Richtung Darß/Ostsee :
Mehrmals in der Woche können Urlauber von Stuttgart, München und Köln/Bonn aus mit dem Flugzeug nach Rostock-Laage reisen.
Auf dem Flughafen angekommen besteht die Möglichkeit zur Nutzung eines Shuttletransfers, mit dem es ohne Verzögerung auf Deutschlands schönste Ostseehalbinsel geht.
Der Flughafen Barth ist Privatflugzeugen vorbehalten.
Ausstattung Innenbereich
Küche
- Backofen
- Besteck
- Geschirr
- Geschirrspülmaschine
- Herd
- Kaffeemaschine
- Kühlschrank
- Mikrowelle
- Toaster
- Wasserkocher
4-Platten Herd, Dunstabzugshaube, Kühlschrank mit Gefrierfach, Mixer, Korkenzieher / Flaschenöffner, Essplatz in der Küche, TV in der Küche
Wohnzimmer / Unterhaltung
- Brettspiele
- Deutsche TV-Programme
- Fernseher
- Sofa
TV, TV-Sat, TV-Flachbildschirm, Bücher, Eckcouch, Sessel, Fliegengitter
Schlafzimmer
- Doppelbett / Breite: 151 - 180 cm
- Großes Doppelbett / Breite: >181 cm
- Kleiderschrank
- Radio
- Rolläden - Verdunkelung
- Zusätzliche Decken
Schlafzimmer mit Boddenblick Doppelbett 1,80 x 2,00m, Kommode, Wecker, Leselampe am Bett, Fliegengitter
Badezimmer
- Bad mit Dusche
- Fön
- WC
Fußbodenheizung, Fenster Waschbecken, Spiegel, Fenster im Bad, Fliegengitter
Ausstattung Außenbereich
Balkon / Terrasse / Garten
- Garten
- Gartenmöbel
- Grill
- Sonnenliegen
- Sonnenschirm
- Überdachte Terrasse (mobil)
Liegewiese, Gartenmöbel, Kohlegrill, Bänke, Hof
Parkmöglichkeiten
- Parkplatz auf dem Grundstück
Sport
- Drachenfliegen
- Klettern
- Reiten
- Tischtennis
- Wandern
Allgemeine Ausstattung
- Essbereich
- Fußbodenheizung
- Radio
- Staubsauger
- TV
- WLAN
Weitere Infos:
WLAN über Glasfaser-Breitband
Kinder ab 8 Jahre
Besonderheiten
- Meerblick
- Raucherbereich
- Seeblick
- Seniorenfreundlich
Weitere Infos:
WLAN über Glasfaser-Breitband
Raucherbereich: Südterrasse
Kostenfreie Leistungen
Mietpreise
| Saison | Zeitraum | Kosten je Mindestaufenthalt inkl. einmalige verbindliche Kosten (zzgl. evtl. optionaler Kosten) |
Wochenpreis inkl. einmalige verbindliche Kosten (zzgl. evtl. optionaler Kosten) |
Wochenpreis (Festpreis weitere Woche ohne Kosten) |
|---|---|---|---|---|
| Standardpreis | Gültig außerhalb angelegter Saisonpreise |
7 Nächte
735,00 € bis 2 Personen - je weitere Nacht: 95,00 € |
735,00 € bis 2 Personen |
665,00 € bis 2 Personen |
| Spätwinter |
07.01.2026 bis 02.04.2026 Last-Minute vom: 28.03.2026 - 07.04.2026: 5 % Rabatt |
7 Nächte
630,00 € bis 2 Personen - je weitere Nacht: 80,00 € |
630,00 € bis 2 Personen |
560,00 € bis 2 Personen |
| Ostern |
02.04.2026 bis 25.04.2026 Last-Minute vom: 28.03.2026 - 07.04.2026: 5 % Rabatt |
7 Nächte
595,00 € bis 2 Personen - je weitere Nacht: 75,00 € |
595,00 € bis 2 Personen |
525,00 € bis 2 Personen |
| Sonderangebot | 25.04.2026 bis 09.05.2026 |
7 Nächte
560,00 € bis 2 Personen - je weitere Nacht: 70,00 € |
560,00 € bis 2 Personen |
490,00 € bis 2 Personen |
| Himmelfahrt | 09.05.2026 bis 23.05.2026 |
7 Nächte
595,00 € bis 2 Personen - je weitere Nacht: 75,00 € |
595,00 € bis 2 Personen |
525,00 € bis 2 Personen |
| Pfingsten | 23.05.2026 bis 06.06.2026 |
7 Nächte
630,00 € bis 2 Personen - je weitere Nacht: 80,00 € |
630,00 € bis 2 Personen |
560,00 € bis 2 Personen |
| Sommer | 06.06.2026 bis 05.09.2026 |
7 Nächte
735,00 € bis 2 Personen - je weitere Nacht: 95,00 € |
735,00 € bis 2 Personen |
665,00 € bis 2 Personen |
| Spätsommer | 05.09.2026 bis 26.09.2026 |
7 Nächte
630,00 € bis 2 Personen - je weitere Nacht: 80,00 € |
630,00 € bis 2 Personen |
560,00 € bis 2 Personen |
| Sonderangebot | 26.09.2026 bis 10.10.2026 |
7 Nächte
595,00 € bis 2 Personen - je weitere Nacht: 75,00 € |
595,00 € bis 2 Personen |
525,00 € bis 2 Personen |
| Herbst | 10.10.2026 bis 21.12.2026 |
7 Nächte
560,00 € bis 2 Personen - je weitere Nacht: 70,00 € |
560,00 € bis 2 Personen |
490,00 € bis 2 Personen |
| Weihnachten/Neujahr | 21.12.2026 bis 09.01.2027 |
7 Nächte
700,00 € bis 2 Personen - je weitere Nacht: 90,00 € |
700,00 € bis 2 Personen |
630,00 € bis 2 Personen |
| Winter | 09.01.2027 bis 25.03.2027 |
7 Nächte
630,00 € bis 2 Personen - je weitere Nacht: 80,00 € |
630,00 € bis 2 Personen |
560,00 € bis 2 Personen |
| Einmalige verbindliche Kosten | Preis | Kostenart |
|---|---|---|
| Endreinigung | 70,00 € | einmalig (oben in den Preisen enthalten) |
| Strom | 0,00 € | einmalig (oben in den Preisen enthalten) |
| Wasser | 0,00 € | einmalig (oben in den Preisen enthalten) |
| Heizung | 0,00 € | einmalig (oben in den Preisen enthalten) |
| Zusätzliche verbindliche Kosten | Preis | Kostenart |
|---|---|---|
| Haustier | 5,00 € | pro Haustier und Tag |
| Müllentsorgung | 0,00 € | pro Person und Aufenthalt |
| Parkplatz | 0,00 € | pro Person und Aufenthalt |
| Weitere Kostenpositionen | Preis | Kostenart | Fälligkeit |
|---|---|---|---|
| WLAN | 0,00 € | pro Benutzung | Optional |
| Mietbedingungen |
|---|
| Informationen zur Anreise | Tag der Anreise | Check-in ab | Tag der Abreise | Check-out bis |
|---|---|---|---|---|
| Am Anreisetag | 15:00 Uhr | Am Anreisetag | 10:00 Uhr |
| Zahlungsbdg. | Anzahlung | Restzahlung | Zahlungsmöglichkeiten |
|---|---|---|---|
| 30 % vom Mietpreis | bis 6 Wochen vor Anreise |
Barzahlung bei Ankunft Überweisung |
| Kurtaxe für. | Preis | Kostenart | Zeitraum |
|---|---|---|---|
| Kinder ab 6 Jahre | 1,60 € | pro Person und Tag | Januar - Dezember |
| Erwachsene | 2,50 € | pro Person und Tag | Januar - Dezember |
| Kinder ab 0 Jahre | 0,00 € | pro Benutzung | Januar - Dezember |
| Weitere Preisinformationen |
|---|
Hund pro Nacht a) 5,00 €
Die Stornierungsbedingungen finden Sie in den Allgemeinen Vertragsbedingungen im Angebot.
Der An- und Abreisetag ist Samstag vom 4. Sa im April bis 2. Sa im Oktober.
Weihnachten / Silvester / Neujahr ab 7 Nächte, tägliche An- und Abreise, außer: 24.12. bis 26.12.
Ostern ab 5 Nächte (tägliche An- und Abreise)
Ansonsten ab 7 Nächte ist der An- und Abreisetag täglich
Die Kurabgabe beträgt je Person und Aufenthaltstag:
° Ganzjährig
° Erwachsene (ab 16 Jahren) 2,50 €
° Kinder zw. 6 - 15 Jahren 1,60 €
° Last-Minutenpreis für 7 Nächte
Die geltende Mehrwertsteuer ist im Preis enthalten.
Belegungskalender
Vermieter
| Vermieter: | Hella Fitzka | Sprachen: |
de |
| Warum sind Sie Gastgeber?: | Hallo liebe Gäste, ich würde mich freuen wenn Ihnen meine Ferienwohnungen gefallen. Vielleicht bis bald oder bis zum nächsten Jahr. Ihre Familie Fitzka |
| Ihr geheimer Urlaubstipp: | Hundeurlaub - Wassergrundstück Piratennest Darss bei Familie Fitzka |

Kontakt
| Mobil: | +491702480029 |
| Mobil: | +4915151115847 |
| Zur Webseite: | Zur Webseite |
Weitere Informationen
Inserat-ID: 232
Vermieter-ID: 3918
Vermieter seit: 22.06.2016
Aufrufe gesamt: 76782
URL: https://www.hundeurlaub.de/objekt/232
URL: /objekt/232
Weitere Objekte des Vermieters:
Ostsee – Hundeurlaub – (eingezäunte Spielwiese direkt am Wasser) Angeln Typ2
Ostsee – Hundeparadies – Wassergrundstück - Angeln Typ 1/2
Ostsee - Darß - Born - Wassergrundstück mit Hund – Angeln
Ostseeurlaub - Wassergrundstück - Hund - Angeln - eingezäunte Hundewies - Wasserblick Typ 1/4
Wassergrundstück mit Südbalkon, Bootssteg, Angeln, Hundeurlaub Typ 1/3
Alle Inserate des Vermieters auf einen Blick: