großzügiges Appartement mit Terrasse und Blick in die Landschaft
Appartement 1 in Oberzent (Rothenberg)

Ihre Ferienunterkunft "Kurz & Knapp"

65 m²
Wohnfläche
2
Zimmer
3
Personen (max.)
1
Hunde (max.)
09.02.2024
Vermieter seit

Hunde (Tiere) in der Ferienunterkunft

Anzahl der Hunde: 1 Hund(e)
Weitere Tiere: Pferde auf Anfrage
Ausstattung für Hunde:Hundebademöglichkeit in der Nähe
Hundespaziergang vom Haus aus möglich
Tierarzt in der Nähe (bis 20km)
Ausstattung für Pferde:Erste-Hilfe-Set
Pferdefutter
Weide

Größe

Art der Unterkunft: Ferienwohnung
Grundstück: 3800 m²
Wohnfläche gesamt: 65 m²
Anzahl der Etagen: 1
Wohnung liegt in der folgenden Etage: Souterrain
Baujahr: 2008

Belegung

Zimmer gesamt: 2
Anzahl Schlafzimmer: 2
Anzahl Badezimmer/Gäste-WC: 1
Belegung max.: 3 Person(en)
Informationen zur Unterkunft

Das helle Appartement befindet sich in einem Ferienhaus mit insgesamt 2 Ferienwohnungen und gehört zum Ferienhof Rothenberg.
Bei der Wohnung handelt sich um die untere Wohnung; jede Wohnung hat einen eigenen Hauseingang.
Vom Parkplatz aus ist die Wohnung über eine Treppe zu erreichen.
Unser Ferienhof befindet sich in ruhiger Ortsrandlage, von der Haustür aus führen Wanderwege in alle Himmelsrichtungen.

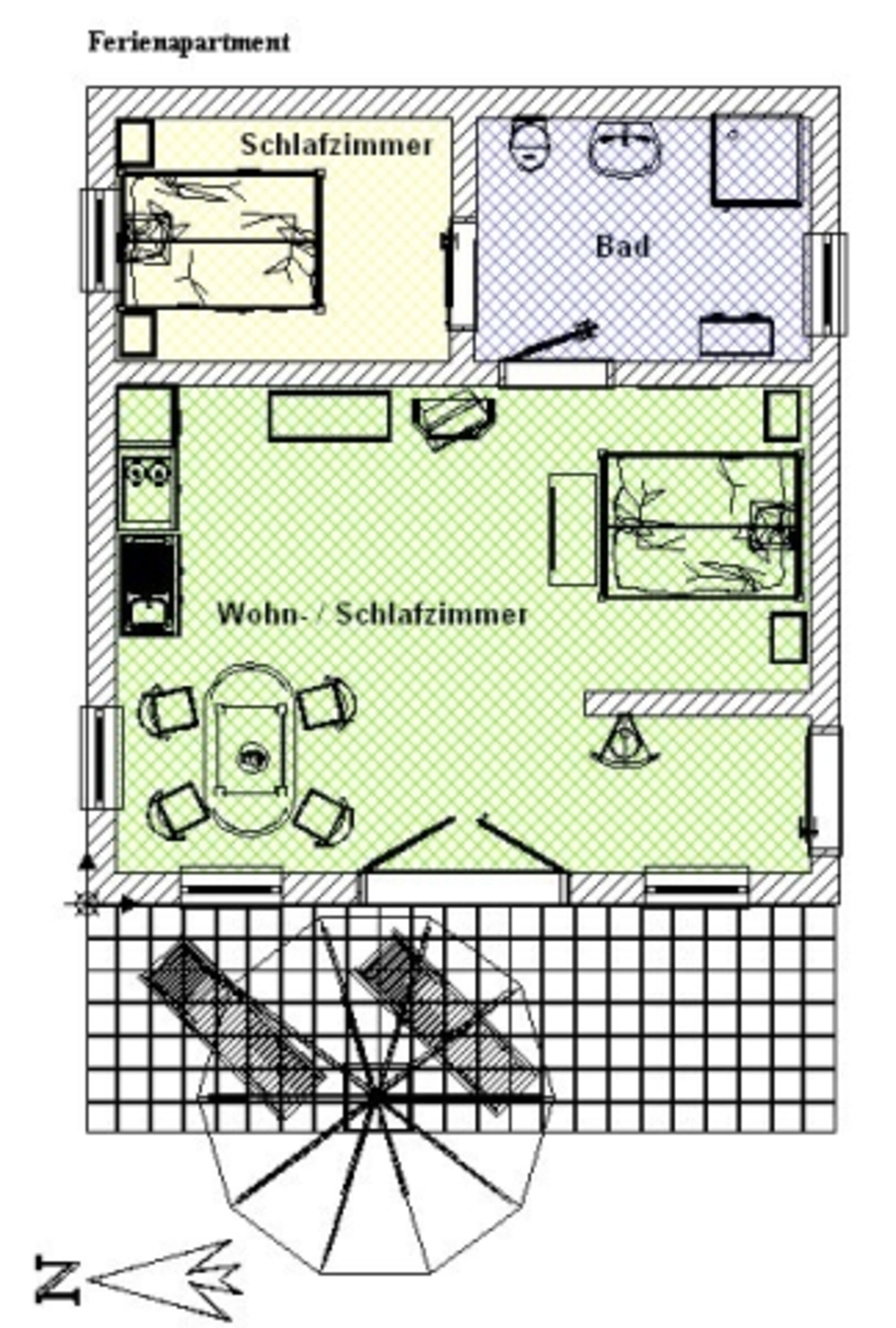
Das großzügige Appartement verfügt über ein geräumiges Wohn- Schlafzimmer mit integrierter Küche, ein Badezimmer mit Fenster und ein weiteres kleines Schlafzimmer. 2 bis 3 Personen finden hier großzügig Platz.
Zur Wohnung gehört eine Terrasse mit Grillmöglichkeit. Außerdem stehen weitere Sitzmöglichkeiten und Liegen auf unserer Außenanlage für Sie zur Verfügung.
Direkt an der Haustür vorbei führen Wanderwege des Geonaturpark Odenwald vorbei.

Karte anzeigen
=> Lage Ferienunterkunft (genaue Lage kann abweichen)
Arzt
10 Kilometer
Hausarzt
Auslauf für Hunde
1 Meter
Bank / Geldautomat
500 Meter
Sparkasse & Volksbank
Tierarzt
18 Kilometer
Freibad
5 Kilometer
Naturpark
1 Meter
Geopark Odenwald Wanderwege
Einkaufsmöglichkeiten
500 Meter
Metzger & Brötchen
Umgebung der Unterkunft

Der Ferienhof Rothenberg liegt mitten im sagenumwobenen Geonaturpark Odenwald, unweit von Heidelberg.

Von hier aus lassen sich der Odenwald, die Bergstraße und das Neckartal zu Fuß oder per Fahrrad erkunden.
Wandeln Sie auf den Spuren von Sigfried, dem Drachentöter oder entdecken Sie die zahlreichen Burgen und Ruinen.
Bei Wanderungen durch die wunderschönen Mischwälder können Sie die Seele baumeln lassen oder beim Mountain Biking richtig Gas geben.
Ausflugsziele wie Erbach, Michelstadt, Hirschhorn oder Heidelberg sind stets einen Besuch wert.

Freizeitaktivitäten in der Umgebung
  • Freibad
  • Hallenbad
  • Minigolf
  • Mountain-Biking
  • Nordic-Walking
  • Radfahren
  • Reiten
  • Segelfliegen
  • Stadtbesichtigung / Sightseeing
  • Wandern
Urlaubsarten
  • Bergurlaub
  • Erholungsurlaub
  • Familienurlaub
  • Single-Urlaub
  • Sport- und Aktivurlaub
  • Urlaub mit Baby / Kleinkind
  • Urlaub mit Hund
  • Urlaub mit Kindern
  • Wander- oder Kletterurlaub

Küche

  • 2-Platten Herd
  • Besteck
  • Dunstabzugshaube
  • Essplatz in der Küche
  • Geschirr
  • Geschirrhandtücher
  • Geschirrspülmaschine
  • Gewürze (Salz, Pfeffer, Zucker)
  • Kaffeemaschine
  • Korkenzieher / Flaschenöffner
  • Kühlschrank
  • Kühlschrank mit Gefrierfach
  • Mikrowelle
  • Mülltüten
  • Öl / Essig
  • Radio
  • Reinigungsutensilien (Spüli, Tabs etc.)
  • Toaster
  • TV in der Küche
  • Wasserkocher
mehr..

Wohnzimmer / Unterhaltung

  • 2er-Sofa
  • Brettspiele
  • Bücher
  • Deutsche TV-Programme
  • Essbereich
  • Fliegengitter
  • Radio
  • TV-Flachbildschirm
mehr..

Schlafzimmer 1

  • Bettwäsche
  • Doppelbett 1,80 x 2,00m
  • Fliegengitter
  • Kleiderschrank
  • Leselampe am Bett
  • Radio
  • Rolläden - Verdunkelung
  • Spiegel
  • TV im Schlafzimmer
  • Zusätzliche Decken
mehr..

Schlafzimmer 2

  • Bettwäsche
  • Einzelbett
  • Fliegengitter
  • Kleiderschrank
  • Leselampe am Bett
  • Zusätzliche Decken
mehr..

Badezimmer

  • Bad mit Dusche
  • Badetücher
  • Ebenerdige Dusche
  • Fenster im Bad
  • Fliegengitter
  • Fön
  • Handtücher
  • Kosmetiktücher
  • Spiegel
  • Toilettenpapier
  • Waschbecken
  • WC
mehr..

Sonstiges

  • Bügelbrett
  • Bügeleisen
  • Erste-Hilfe-Kasten
  • Fußbodenheizung
  • Staubsauger
  • WLAN
mehr..

Balkon / Terrasse / Garten

  • Balkonmöbel
  • Kohlegrill
  • Liegewiese
  • Sonnenschirm
  • Terrasse
  • Überdachte Terrasse
mehr..

Parkmöglichkeiten

  • Parkplatz auf dem Grundstück

    Sport

    • Schlitten
      • Allergikerfreundlich
      • Brötchenservice
      • Frühstücksservice
      • Hausmeisterservice
      • Putzservice
      Nebenkosten (Strom, Wasser Heizung)
      Bettwäsche
      Handtücher
      WLAN
      Mietpreise
      Saison Zeitraum Kosten je Mindestaufenthalt
      inkl. einmalige verbindliche Kosten
      Wochenpreis
      inkl. einmalige verbindliche Kosten
      Wochenpreis
      (Festpreis weitere Woche ohne Kosten)

      Der Vermieter hat keine Preisinformationen angegeben - bitte Preise beim Vermieter anfragen!

      Einmalige Verbindliche Kosten
      Einmalige verbindliche Kosten Preis Kostenart
      Endreinigung 60 € einmalig (oben in den Preisen enthalten)

      Weitere Kostenpositionen
      Weitere Kostenpositionen Preis Kostenart Fälligkeit
      Frühstücksservice 14 € pro Person und Tag Optional
      Waschmaschinennutzung 4 € pro Benutzung Optional

      Mietbedingungen
      Informationen zur Kaution
      Informationen zur Kaution Kautionsart Kaution
      Als Festbetrag in Euro 200 €

      Informationen zur Anreise
      Informationen zur Anreise Tag der Anreise Check-in ab Tag der Abreise Check-out bis
      Flexibel nach Absprache 15:00 Uhr Flexibel nach Absprache 10:00 Uhr

      Zahlungsbedingungen
      Zahlungsbdg. Anzahlung Restzahlung Zahlungsmöglichkeiten
      50 % vom Mietpreis bis 7 Tage vor Anreise Barzahlung bei Ankunft
      Überweisung

      Stornierungsbedingungen
      Stornierungsbdg. Rücktritt bis Stornokosten vom Reisepreis
      3 Monate vor Anreise 50 %
      4 Wochen vor Anreise 75 %

      Die geltende Mehrwertsteuer ist im Preis enthalten.

      Legende:
       Frei
       Belegt
       Anreise
       Abreise
       Gesperrt
       Reserviert
      Februar 2026
      Mo
      Di
      Mi
      Do
      Fr
      Sa
      So
       
       
       
       
       
       
      1
      2
      3
      4
      5
      6
      7
      8
      9
      10
      11
      12
      13
      14
      15
      16
      17
      18
      19
      20
      21
      22
      23
      24
      25
      26
      27
      28
      März 2026
      Mo
      Di
      Mi
      Do
      Fr
      Sa
      So
       
       
       
       
       
       
      1
      2
      3
      4
      5
      6
      7
      8
      9
      10
      11
      12
      13
      14
      15
      16
      17
      18
      19
      20
      21
      22
      23
      24
      25
      26
      27
      28
      29
      30
      31
      April 2026
      Mo
      Di
      Mi
      Do
      Fr
      Sa
      So
       
       
      1
      2
      3
      4
      5
      6
      7
      8
      9
      10
      11
      12
      13
      14
      15
      16
      17
      18
      19
      20
      21
      22
      23
      24
      25
      26
      27
      28
      29
      30
      Mai 2026
      Mo
      Di
      Mi
      Do
      Fr
      Sa
      So
       
       
       
       
      1
      2
      3
      4
      5
      6
      7
      8
      9
      10
      11
      12
      13
      14
      15
      16
      17
      18
      19
      20
      21
      22
      23
      24
      25
      26
      27
      28
      29
      30
      31
      Juni 2026
      Mo
      Di
      Mi
      Do
      Fr
      Sa
      So
      1
      2
      3
      4
      5
      6
      7
      8
      9
      10
      11
      12
      13
      14
      15
      16
      17
      18
      19
      20
      21
      22
      23
      24
      25
      26
      27
      28
      29
      30
      Juli 2026
      Mo
      Di
      Mi
      Do
      Fr
      Sa
      So
       
       
      1
      2
      3
      4
      5
      6
      7
      8
      9
      10
      11
      12
      13
      14
      15
      16
      17
      18
      19
      20
      21
      22
      23
      24
      25
      26
      27
      28
      29
      30
      31
      August 2026
      Mo
      Di
      Mi
      Do
      Fr
      Sa
      So
       
       
       
       
       
      1
      2
      3
      4
      5
      6
      7
      8
      9
      10
      11
      12
      13
      14
      15
      16
      17
      18
      19
      20
      21
      22
      23
      24
      25
      26
      27
      28
      29
      30
      31
      September 2026
      Mo
      Di
      Mi
      Do
      Fr
      Sa
      So
       
      1
      2
      3
      4
      5
      6
      7
      8
      9
      10
      11
      12
      13
      14
      15
      16
      17
      18
      19
      20
      21
      22
      23
      24
      25
      26
      27
      28
      29
      30
      Oktober 2026
      Mo
      Di
      Mi
      Do
      Fr
      Sa
      So
       
       
       
      1
      2
      3
      4
      5
      6
      7
      8
      9
      10
      11
      12
      13
      14
      15
      16
      17
      18
      19
      20
      21
      22
      23
      24
      25
      26
      27
      28
      29
      30
      31
      November 2026
      Mo
      Di
      Mi
      Do
      Fr
      Sa
      So
       
       
       
       
       
       
      1
      2
      3
      4
      5
      6
      7
      8
      9
      10
      11
      12
      13
      14
      15
      16
      17
      18
      19
      20
      21
      22
      23
      24
      25
      26
      27
      28
      29
      30
      Dezember 2026
      Mo
      Di
      Mi
      Do
      Fr
      Sa
      So
       
      1
      2
      3
      4
      5
      6
      7
      8
      9
      10
      11
      12
      13
      14
      15
      16
      17
      18
      19
      20
      21
      22
      23
      24
      25
      26
      27
      28
      29
      30
      31
      Letzte Aktualisierung: 05.02.2026
      Vermieter: Michael Gittek
      Sprachen: Deutsch
      Englisch / English
      Sie über sich: 1997 starten wir , Michael und Annette Gittek, den Umbau des ehemaligen Bauernhofs mit unserer ersten Ferienwohnung. Mittlerweile sind wir stolz, unseren Ferienhof mit 9 Ferienwohnungen zu betreiben. Wir sind immer bemüht, uns und den Hof weiter zu entwickeln, damit sich unsere Gäste rundum wohlwühlen. Seit Sommer 2023 ist unsere Tochter Wiebke mit in den Familienbetrieb eingestiegen. Wir freuen uns sehr darauf, Sie bei uns begrüßen zu dürfen!
      Mobil: +491622464355

      Inserat-ID: 15624

      Vermieter-ID: 6975

      Vermieter seit: 09.02.2024

      Aufrufe gesamt: 2132

      URL: /objekt/15624


      Weitere Objekte des Vermieters:

      Schöne Ferienwohnung mit Blick ins Tal

      großzügige Ferienwohnung für bis zu 6 Personen mit Panoramablick

      Alle Inserate des Vermieters auf einen Blick:

      Übersicht aller Vermieter Inserate

      großzügiges Appartement mit Terrasse und Blick in die Landschaft Inserat-ID: 15624


      Ihr Gastgeber Michael Gittek

      Weitere Unterkünfte des Vermieters Alle Unterkünfte des Vermieters anzeigen