Ferienhaus mit Kamin, Sauna, 900m zum Naturstrand, kompl. eingezäunt
Ferienhaus Bernstein in Dranske (OT Lancken)
Ihre Ferienunterkunft "Kurz & Knapp"
Wohnfläche
Schlafzimmer
Personen (max.)
Hunde (max.)
Vermieter seit
Hunde (Tiere) in der Ferienunterkunft
| Anzahl der Hunde: | 2 Hund(e) |
| Ausstattung für Hunde: | Hundebademöglichkeit in der Nähe Hundedecke / Hundekorb Hundespaziergang vom Haus aus möglich Silvester Böllerarm Tierarzt in der Nähe (bis 20km) Umfriedeter Gartenbereich (komplett mit Zaun / nicht nur Hecke) Umfriedetes Grundstück (komplett mit Zaun) Zaunhöhe bis 1,50 Meter |
Größe
| Art der Unterkunft: | Ferienhaus |
| Grundstück: | 650 m² |
| Wohnfläche gesamt: | 127 m² |
| Anzahl der Etagen: | 2 |
| Baujahr: | 2016 |
Belegung
| Anzahl Schlafzimmer: | 3 |
| Anzahl Badezimmer/Gäste-WC: | 2 |
| Belegung max.: | 5 Person(en) |
Beschreibungen
Lieben Sie die Ostsee & Sonnenuntergänge ? Wollen Sie Ihren Urlaub mit Ihrer Familie abseits vom touristischen Trubel verleben, aber nicht auf Luxus verzichten?
Dann sind Sie in unserem Haus genau richtig, ankommen und wohlfühlen.
Das Ferienhaus (2016 fertiggestellt) hat mit seinen 127 qm genügend Platz für bis zu 5 Personen. Sie können bequem 2 Autos auf dem abgeschlossenen Grundstück parken.
Im Erdgeschoss ist die komplett eingerichtete offene Küche mit Essecke und angrenzendem Wohnzimmer sehr großzügig geschnitten.
Sollten Sie nach einem Strandspaziergang vom rauen Ostseewind durchgefroren sein, machen Sie sich's einfach vorm Kamin gemütlich oder wärmen Sie sich in unserer Sauna (Bad im EG) auf. Zum Relaxen im Freien nutzen Sie doch unseren Garten, mit der überdachte Terrasse (12 qm), Strandkorb (April-Oktober) und Sonnenliegen. Ihre Fellnasen können Sie im komplett eingezäunten Garten frei laufen lassen.
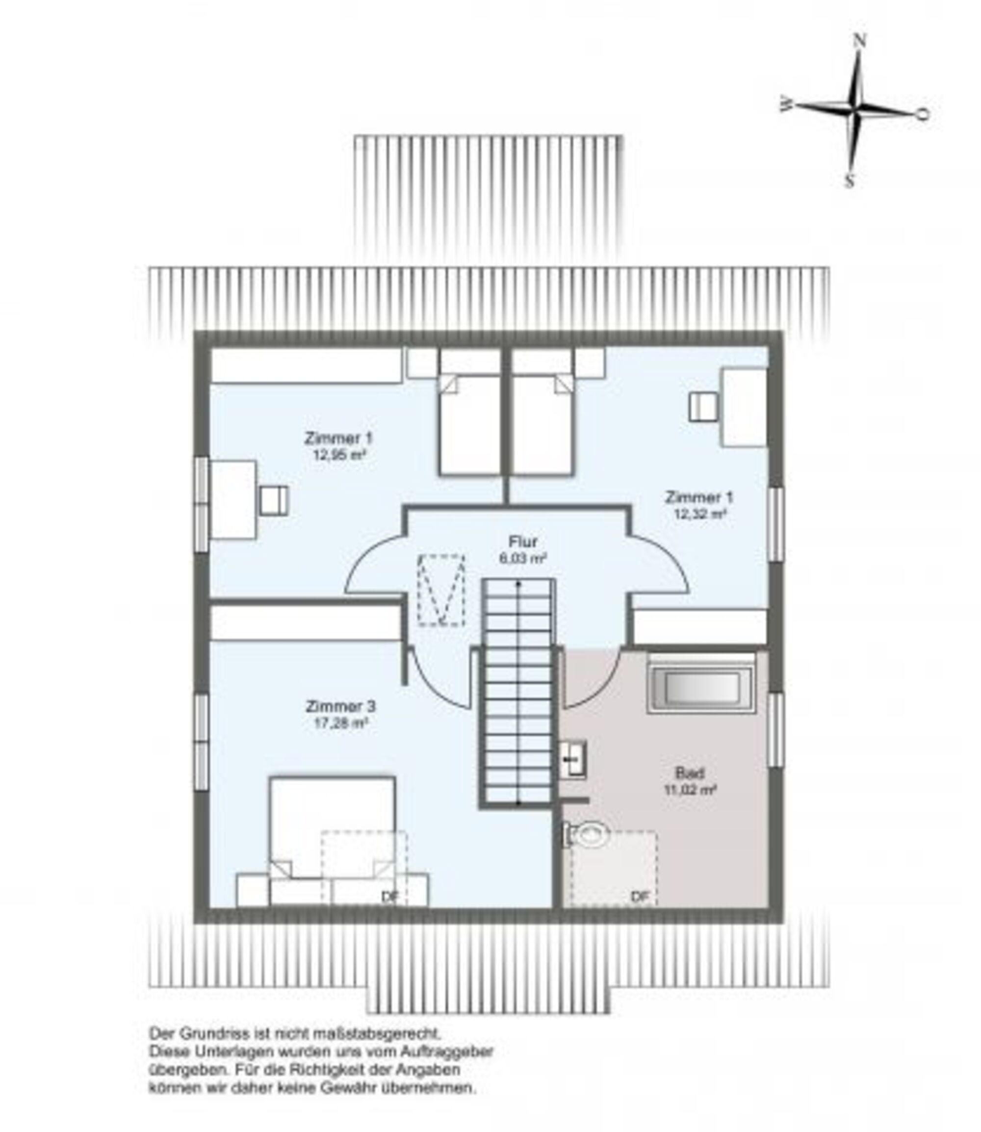
Im Obergeschoss befinden sich 3 Schlafzimmer, zwei Schlafzimmer mit Doppelbetten (eins mit Fernseher inkl. DVD-Player),und ein Zimmer mit einem Einzelbett. Hier können Sie am Tischkicker eine Meisterschaft austragen. Eine Auswahl an Büchern und Spielen sind für Sie vorhanden.
Im Wohnzimmer und in einem Schlafzimmer liegen je ein großes Knuffelwuff-Hundebett für die Fellnasen bereit.
Wollen Sie auch im Urlaub auf ein Erholungsbad nicht verzichten? Im Obergeschoss können Sie bei einem Bad mit Kerzenschein relaxen.
Im Haus hat man immer frische Rügener Luft dank einer modernen Lüftungsanlage, die für wohlige Wärme sorgt.
Alle Fenster des Hauses sind mit einer Außenjalousie ausgestattet. Außerdem sind an den Fenstern in den Schlafräumen Mückengitter angebracht.
Lage & Entfernungen
900 Meter
Naturstrand
30000 Meter
Dr. Puvogel, Schaprode
2000 Meter
Rugana Feriendorf
4000 Meter
Dranske
4000 Meter
Allgemeinarzt, Dipl-Med. Kaffka
4000 Meter
Dranske
4000 Meter
Rügen Piraten Wassersport
30000 Meter
Golfplatz Schloss Ranzow
40000 Meter
Seilgarten Prora
42000 Meter
Inselrodelbahn Bergen
48000 Meter
Karls Erlebnisdorf Zirkow
Das Haus befindet sich im Bernsteinweg im Dranske OT Lancken in einer kleinen Ferienhaussiedlung.
Hier gibt es zu Silvester kein öffentliches Feuerwerk. In diesem Gebiet ist Feuerwerk verboten.
Der kleine Ort Lancken liegt in der schönen Natur der Halbinsel Wiek im Nordwesten von Rügen. Von hier sind es nur ein 800 m zur Steilküste. Über einen Trampelpfad gelangen Sie an den wunderschönen Naturstrand oder etwa 1,5 km entfernt über eine Stahltreppe zum Ostseestrand. Hier brauchen Sie keine überfüllten Strände befürchten.
Ihre Vierbeiner sind an den Stränden gern gesehene Gäste!
Die Küste westlich von Kap Arkona ist für Strandwanderungen an abwechslungsreichen Stränden und Fahrradtouren abseits großen Trubels ideal. Die Gegend hat sehr gut ausgebaute Radwege. Sie können durch schöne Landschaft zum 14 km entfernten Kap Arkona radeln oder zum idyllischen Fischerdorf Vitt.
Von Breege können Sie bequem mit dem Boot zu den Störtebeker Festspielen (Juni bis September) reisen.
Erkunden Sie doch einen Tag die wunderschöne autofreie Insel Hiddensee, die sie mit der Fähre vom Nachbarort Dranske oder auch von Wiek erreichen.
Oder mögen Sie's sportlich? Dann besuchen Sie die "Rügen Piraten Wassersportschule GmbH" (https://www.ruegen-piraten.de/) in Dranske. Dort können Sie Windsurfen, Surfen, Kiten oder Segeln.
Einen kleiner Edeka und Bäcker erreichen Sie im 2 km entfernten Rugana Feriendorf. Weitere größere Einkaufsmöglichkeiten befinden sich in den Nachbarorten wie Dranske, Altenkirchen und Wiek (ca. 1/4 h mit dem Auto erreichbar)
Wenn Sie mal nicht selbst kochen möchten, besuchen Sie doch eines der vielen Restaurants in Dranske (https://www.gemeinde-dranske.de/tourismus-1/gaststätten/)
Mit Ihrer Kurkarte, die Sie nach Bezahlung der Kurtaxe erhalten, bekommen sie 5 % Rabatt auf:
- Karten der Störtebekerfestspiele
- Fahrscheine für die Tour nach Hiddensee mit der Weißen Flotte ab Dranske (Juni bis September),
- Eintrittskarten für das Nationalparkzentrum Königsstuhl
- Eintrittskarten für die Bugwanderung
- Fahrscheine für die Tour nach Hiddensee mit der Reederei Kipp ab Breege und den Störtebeker Transfer nach Ralswiek
- Bootfahren
- Golf
- Kitesurfing
- Minigolf
- Radfahren
- Reiten
- Sauna
- Schwimmen
- Segeln
- Surfen
- Wandern
- Wasserski
- Erholungsurlaub
- Familienurlaub
- Golfurlaub
- Sport- und Aktivurlaub
- Strandurlaub
- Urlaub am Meer (max. 25km entfernt)
- Urlaub mit Hund
- Urlaub mit Kindern
Anreiseroute 1 (kürzere Route) über die Wittower Fähre (Pendelverkehr -Preis 2019: 9,50 € je Auto)
Auf Rügen folgen Sie der B96n bis zur Abfahrt Putbus / Garz. Hier biegen Sie links ab in Richtung Samtens. In Samtens fahren Sie geradeaus in Richtung Gingst von hier aus der Beschilderung "Wittower Fähre" folgen. Hier haben Sie schon das erste Urlaubshighligt erreicht.
Nach der Überfahrt fahren Sie geradeaus in Richtung Wiek. Durchqueren sie Wiek auf der Hauptstraße in Richtung Juliusruh. Circa einen Kilometer hinter Wiek biegen Sie links ab Richtung Dranske. Nach Kuhle folgt der Hauptstraße gleichlaufend ein Radweg. Nach circa einem Kilometer führt rechts eine kleine Straße nach Lancken.
Der Bernsteinweg ist neu! Falls Ihr Navigationssystem die Straße nicht findet , können Sie die Ecke "Zur Axelhöhe"/"An den Windflüchtern".
Anreiseroute 2 (längere Route ohne Fähre)
Wenn Sie Rügen über die Rügenbrücke erreicht haben, fahren Sie Richtung Bergen / Sassnitz, immer der Hauptstraße folgend. Bergen lassen Sie rechts liegen und fahren weiter in Richtung Sassnitz. Vor Sagard an der Kreuzung biegen Sie links ab in Richtung Altenkirchen. Bleiben Sie immer auf der Hauptstraße, durchfahren Sie Bobbin, Glowe, Juliusruh und an Altenkirchen (Tankstelle, Netto-Markt) fahren Sie vorbei. Nach circa 2 Kilometern fahren Sie rechts ab Richtung Dranske. Nach Kuhle folgt der Hauptstraße gleichlaufend ein Radweg. Nach circa einem Kilometer führt rechts eine kleine Straße nach Lancken.
Der Bernsteinweg ist neu! Falls Ihr Navigationssystem die Straße nicht findet , können Sie die Ecke "Zur Axelhöhe"/"An den Windflüchtern".
Ausstattung Innenbereich
Küche
- Backofen
- Besteck
- Geschirr
- Geschirrspülmaschine
- Herd
- Kaffeemaschine
- Kühlschrank
- Mikrowelle
- Reinigungsutensilien (Spüli, Tabs etc.)
- Toaster
- Wasserkocher
4-Platten Herd, Cerankochfeld, Dunstabzugshaube, Gefrierschrank, Nespresso-Automat, Tassimo-Kaffeautomat, Eierkocher, Mixer, Korkenzieher / Flaschenöffner, Gewürze (Salz, Pfeffer, Zucker), Öl / Essig, Geschirrhandtücher, Mülltüten, Essplatz in der Küche
Wohnzimmer / Unterhaltung
- Brettspiele
- Deutsche TV-Programme
- Fernseher
- Hi-Fi-Anlage
- Sofa
TV, TV-Sat, TV-Flachbildschirm, Hi-Fi-Anlage mit Bluetooth, CD-Player, CD´s, Bücher, Kaminofen, Eckcouch, 3er-Sofa, 2er-Sofa, Sessel, Fliegengitter
Schlafzimmer 1
- Doppelbett / Breite: 151 - 180 cm
- Kleiderschrank
- Rolläden - Verdunkelung
- Zusätzliche Decken
Doppelbett 1,80 x 2,00m, Kommode, DVD-Player, Leselampe am Bett
Schlafzimmer 2
- Doppelbett / Breite: 151 - 180 cm
- Kleiderschrank
- Rolläden - Verdunkelung
- Zusätzliche Decken
Schreibtisch, -stuhl Doppelbett 1,80 x 2,00m, Kommode, Spiegel, Leselampe am Bett
Schlafzimmer 3
- Einzelbett
- Radio
- Rolläden - Verdunkelung
Tischkicker, Bücher, Spielesammlung Einzelbett, Kommode, CD-Player, Spiegel, Leselampe am Bett
Badezimmer 1
- Bad mit Dusche
- Ebenerdige Dusche
- Sauna
- WC
Waschbecken, Spiegel, Fenster im Bad
Badezimmer 2
- Bad mit Badewanne
- Fön
- WC
Waschbecken, Spiegel, Fenster im Bad
Ausstattung Außenbereich
Balkon / Terrasse / Garten
- Garten
- Gartenmöbel
- Grill
- Sonnenliegen
- Terrasse
Liegewiese, Strandkorb, Gartenmöbel, Kohlegrill, Balkonmöbel, Hof
Parkmöglichkeiten
- Parkplatz auf dem Grundstück
Allgemeine Ausstattung
- Essbereich
- Kamin
- Radio
- Staubsauger
- TV
- Waschmaschine
- WLAN
- Zentralheizung
Weitere Infos:
Willkommenspräsent
Besonderheiten
- Nichtraucherdomizil
Weitere Infos:
Willkommenspräsent
Kostenfreie Leistungen
Mietpreise
| Saison | Zeitraum | Kosten je Mindestaufenthalt inkl. einmalige verbindliche Kosten (zzgl. evtl. optionaler Kosten) |
Wochenpreis inkl. einmalige verbindliche Kosten (zzgl. evtl. optionaler Kosten) |
Wochenpreis (Festpreis weitere Woche ohne Kosten) |
|---|---|---|---|---|
| Frühsommer | 13.04.2026 bis 27.06.2026 |
5 Nächte
1.040,00 € bis 5 Personen - je weitere Nacht: 170,00 € |
1.380,00 € bis 5 Personen |
1.190,00 € bis 5 Personen |
| Sommer | 28.06.2026 bis 27.09.2026 |
7 Nächte
1.639,00 € bis 5 Personen - je weitere Nacht: 207,00 € |
1.639,00 € bis 5 Personen |
1.449,00 € bis 5 Personen |
| Herbst | 28.09.2026 bis 25.10.2026 |
6 Nächte
1.210,00 € bis 5 Personen - je weitere Nacht: 170,00 € |
1.380,00 € bis 5 Personen |
1.190,00 € bis 5 Personen |
| Nebensaison | 26.10.2026 bis 20.12.2026 |
5 Nächte
790,00 € bis 5 Personen - je weitere Nacht: 120,00 € |
1.030,00 € bis 5 Personen |
840,00 € bis 5 Personen |
| Weihnachten/Neujahr | 21.12.2026 bis 03.01.2027 |
7 Nächte
1.639,00 € bis 5 Personen - je weitere Nacht: 207,00 € |
1.639,00 € bis 5 Personen |
1.449,00 € bis 5 Personen |
| Einmalige verbindliche Kosten | Preis | Kostenart |
|---|---|---|
| Endreinigung | 190,00 € | einmalig (oben in den Preisen enthalten) |
| Zusätzliche verbindliche Kosten | Preis | Kostenart |
|---|---|---|
| Haustier | 5,00 € | pro Haustier und Tag |
| Weitere Kostenpositionen | Preis | Kostenart | Fälligkeit |
|---|---|---|---|
| Handtücher | 8,00 € | pro Person | Optional |
| Bettwäsche | 22,00 € | pro Person | Optional |
| Wäschepaket (Bettwäsche und Handtücher) | 30,00 € | pro Person | Optional |
| WLAN | 0,00 € | pro Benutzung | Optional |
| Mietbedingungen |
|---|
| Informationen zur Kaution | Kautionsart | Kaution |
|---|---|---|
| Als Festbetrag in Euro | 150 € |
| Informationen zur Anreise | Tag der Anreise | Check-in ab | Tag der Abreise | Check-out bis |
|---|---|---|---|---|
| 15:00 Uhr | 10:00 Uhr |
| Zahlungsbdg. | Anzahlung | Restzahlung | Zahlungsmöglichkeiten |
|---|---|---|---|
| 20 % vom Mietpreis | bis 28 Tage vor Anreise |
Überweisung |
| Stornierungsbdg. | Rücktritt bis | Stornokosten vom Reisepreis |
|---|---|---|
| 14 Tage vor Anreise | 90 % | |
| 28 Tage vor Anreise | 70 % | |
| 60 Tage vor Anreise | 50 % | |
| 90 Tage vor Anreise | 20 % |
| Kurtaxe für. | Preis | Kostenart | Zeitraum |
|---|---|---|---|
| Erwachsene | 1,00 € | pro Person und Tag | Oktober - April |
| Kinder ab 0 Jahre | 0,50 € | pro Person und Tag | Oktober - April |
| Kinder ab 0 Jahre | 1,00 € | pro Person und Tag | Mai - Oktober |
| Erwachsene | 1,50 € | pro Person und Tag | Mai - Oktober |
| Weitere Preisinformationen |
|---|
* Sauna ist im Preis inkl.
* Hundegebühr 5,00 Euro pro Hund / Tag
* großes Saunatuch 3,00 á Person - bitte bei Buchung mit angeben
* Handtuchset beinhaltet 1 x Handtuch, 1 x Duschtuch (á Person) + Gästehandtuch, Duschvorleger
* Bettwäsche müssen Sie bitte mitbringen.
* Kaminholz bitte mitbringen.
* Stornierung ist nur schriftlich möglich. Mit dem Tag des Posteinganges treten die Stornierungsbedingungen in Kraft.
* Bei einer Buchung von 14 Tagen gewähren wir einen Rabatt von 50,00 Euro pro Kind.
Die geltende Mehrwertsteuer ist im Preis enthalten.
Belegungskalender
Vermieter
| Vermieter: | Annett Oehme-Grimm | Sprachen: |
de en |
| Sie über sich: | Uns zieht es aus Sachsen mindestens einmal im Jahr zu jeder Jahreszeit an die Ostsee, besonders lieben wir die Sonneninsel Rügen, da man auch hier im Hochsommer noch Eckchen findet, wo man die Ruhe genießen kann. |
| Warum sind Sie Gastgeber?: | Für uns als Familie mit 3 Kindern & Hund war es nicht immer einfach, eine Ferienunterkunft zu finden, in der wir ungestört unseren Urlaub verleben konnten. Dies möchten wir anderen Familien damit ermöglichen. |

Kontakt
| Mobil: | +4915903787063 |
| Zur Webseite: | Zur Webseite |
Weitere Informationen
Inserat-ID: 10638
Vermieter-ID: 5287
Vermieter seit: 16.10.2019
Aufrufe gesamt: 40403
URL: https://www.hundeurlaub.de/objekt/10638
URL: /objekt/10638